Realisierungswettbewerb Neues Rathaus

Nach einem europaweit ausgelobten Realisierungswettbewerb wurden zahlreiche Wettbewerbsbeiträge von Architektur- und Landschaftsarchitekturbüros aus dem gesamten Bundesgebiet sowie Österreich fristgerecht eingereicht. Das Preisgericht, das sich aus Sach- (Vertreter des Marktes Schierling) und Fachpreisrichtern (ausgewählte Architekten) zusammengesetzt hatte, konnte sich nach einer 12-stündigen Sitzung einstimmig für den Entwurf von CODE UNIQUE Architekten aus Dresden einigen. Anfang Oktober wurden die Modelle und detaillierten Pläne der Preisträger sowie aller Wettbewerbsteilnehmer eine Woche lang in der Mehrzweckhalle in Schierling ausgestellt.

Nun folgt die virtuelle Darstellung
Neben den aussagekräftigen Planunterlagen (Städtebau, Perspektive, Grundriss, Schnitt) und einem Bild des Modells, findet sich auch eine detaillierte Beschreibung des ausführenden Architektenbüros zum Entwurf. Zudem kann die Bewertung des Preisgerichts eingesehen werden.

ERGEBNISSE REALISIERUNGS­WETTBEWERB


Weitere Teilnehmer

dreigegeneinen architektur - urbane strategien - gestaltung niggl-savic-sevilgen und partner mbb

Bewertung Preisgericht

Die vorgeschlagene Komposition und Fügung der zwei Baukörper steht nicht im Einklang mit der städtebaulichen Situation. Das prägnante steile Satteldach setzt zwar einen Außenakzent, durch die innere Organisation werden aber dessen räumliche Potentiale nicht ausgeschöpft (Technikräume). Der nach Süden mit einer Mauer abgetrennte Innenhof verspricht nicht die gewünschte Aufenthaltsqualität.

Beschreibung des Architekturbüros

ERLÄUTERUNG REALISIERUNGSTEIL

1. Städtebau und Entwurfsidee

Ziel des vorliegenden Entwurfes ist es, eine Gesamtgestaltung aus Vorhandenen und Neuen Elementen zu kreieren. Baulich, indem das neue Rathaus auf die vorhandenen Gebäude des historischen Ortskerns reagiert und historische Elemente aufnimmt. Freiräumlich, indem die Platzräume und Verkehrsflüsse neu interpretiert und unter Berücksichtigung neuer Retentionsräume für die Große Laaber zu einem großen Ganzen gestaltet werden.

Die Entwurfsverfasser schlagen einen aus zwei Teilen bestehenden Baukörper vor. Der hohe Hauptbaukörper ist so positioniert, dass er die Ecksituation von Hauptstraße und Rathausplatz prominent besetzt. Hier liegt auch der Hauptzugang zum Gebäude. Der niedrigere Baukörper schließt die komplette Kante entlang des östlichen Rathausplatzes. Das hier im Erdgeschoss gelegene Bürgerbüro lässt durch große Fenster Ein- und Ausblicke zum Rathausplatz zu und wirkt dadurch als offenes Bürgerhaus in den Stadtraum hinein.

Ein mittig angeordneter Innenhof bildet im Süden einen introvertierten Bezugsraum für den Bürgersaal und das Bürgerbüro und grenzt diese Bereiche vom Parkplatz des Supermarktes ab.

Gestalterisch fügt sich das Volumen in seiner Form und Maßstäblichkeit in die historisch gewachsene Bebauung des Ortes ein und übernimmt traditionelle Elemente lokaler Bauweise um diese wiederum neu zu interpretieren. Das hoch aufstrebende Dach des Hauptbaukörpers und die klare Fassadengestaltung, lässt einen eigenständigen, repräsentativen und identitätsstiftenden Baukörper entstehen. Im Spannungsfeld zwischen Moderne und Tradition wird das Rathaus zum einen seiner Stellung als zeitgemäßes öffentliches Gebäude gerecht und zeigt sich gleichzeitig verbunden mit der Historie des Ortes.

2. Rathaus und Nutzung

Foyer und Eingangsbereich

Durch einen Rücksprung im Erdgeschossbereich des Hauptbaukörpers klar erkennbar, ist der Haupteingang mit dem anschließenden Foyer dem Rathausplatz zugewandt. Das Foyer als großzügige und repräsentative „Mitte“ verbindet alle wichtigen Funktionen des Rathauses miteinander. Es erstreckt sich vom Erdgeschoss, verbunden durch die großzügige Haupttreppe, in die Obergeschosse und vereint die verschiedenen Ebenen auch visuell durch verspringende Lufträume miteinander. Es entstehen spannende Durch- und Ausblicke sowohl innerhalb des Gebäudes als auch in den umgebenden Stadtraum hinein. Ein hoch oben im Satteldach befindliches Oberlicht bringt Licht in die Mitte des Treppenraums und lässt die Höhe des Daches auch im Innenraum erkennbar werden.

Bürgerbüro

Das Bürgerbüro als eine der wesentlichen öffentlichen Nutzungen des Rathauses ist direkt vom Foyer aus barrierefrei erreichbar. Seine prominente Lage am Rathausplatz ermöglicht großzügige Ein- und Ausblicke und wird so dem Verständnis einer offenen und transparenten demokratischen Gesellschaft gerecht. Gleichzeitig liegt der gut belichtete Wartebereich als Teil des Bürgerbüros am introvertierten, begrünten Innenhof.

Bürgersaal

Ähnlich dem Bürgerbüro ist auch der Bürgersaal zwischen öffentlicher Straße und ruhigem Innenhof positioniert. So spiegelt sich auch hier der Entwurfsgedanke von Repräsentation und Bürger- nähe wider. Der Saal ist barrierefrei zugänglich und unabhängig von den sonstigen Öffnungszeiten des Rathauses nutzbar. Funktional bietet er eine Fülle an möglichen Raumnutzungen: vom großen Sitzungssaal, über den Trausaal, bis hin zu privaten Veranstaltungen oder Konzerten. In Verbindung mit dem direkt angrenzenden Foyer und dem Innenhof kann er nahezu als separater Veranstaltungsbereich gewertet werden. Die Teilbarkeit in zwei kleinere Räume mit unabhängigen Zugängen ermög licht zudem zwei kleinere, parallel stattfindende Termine.

Innenhof

Der Innenhof des Rathauses grenzt durch seine Mauer die erdgeschossigen Funktionen nach Süden zum bestehenden Parkplatz konsequent ab. Es entsteht ein dezent begrünter Innenhof, gleich einer ruhigen Oase. Eine schattenspendende Weide und schwingende Gräser machen ihn zu einem Ort des Innehaltens und Verweilens. An der mit wildem Wein bewachsenen Mauer sind Sitzbereiche angeordnet. Der Innenhof ist den beiden Hauptfunktionen von Bürgersaal und Bürgerbüro direkt zugeord net. Die Nutzung des Hofes ergänzt das vorhandene Raumangebot und schafft so eine bisher nicht vorhandene Qualität für das neue Schierlinger Rathaus.

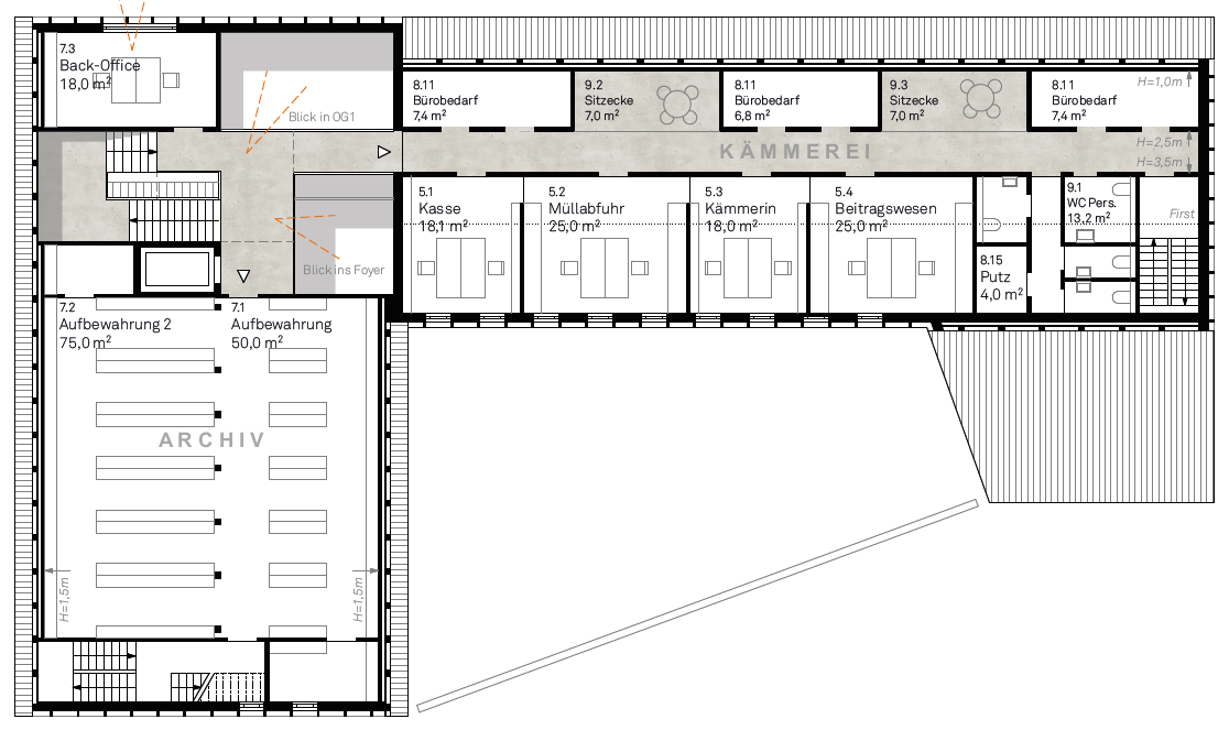
Verwaltungsbereiche und Archive

Hauptamt, Bauamt, Kämmerei und Archive sind im 1. und 2. Obergeschoss der beiden Baukörper untergebracht. Alle Bereiche sind im Sinne einer einfachen und intuitiven Orientierung rund um das Haupttreppenhaus organisiert.

Freiraum, Verkehr, Stellplätze

Die Bereiche rund um das Rathaus sind dezent möbliert und bieten der notwendigen Infrastruktur Platz: Fahrradstellplätze je 5 im Norden und 5 im Osten des Gebäudes, eine Sitzbank an der neu positionierten Bushaltestelle direkt am Rathaus, sowie die Fahnenmasten unmittelbar daneben. Der Schaukasten befindet sich direkt am verglasten Eingang überdacht unter dem Erdgeschossrücksprung. Ein Behindertenparkplatz ist nahe am Eingang gelegen, die restlichen 14 Parkplätze für Rathausbesucher sind östlich und südlich in Verbindung mit dem Supermarktparkplatz geplant.

3. Energetisches Konzept und konstruktiver Hochwasserschutz

Um die Energiestandards eines Passivhauses zu erreichen, ist eine hoch wärmegedämmte Hülle not wendig. Dies wird erfüllt, in dem das gesamte Erdgeschoss aus Dämmbeton und die Obergeschosse in Holzrahmenbauweise umgesetzt werden. Die U-Werte der Umfassungsflächen erreichen dabei Werte zwischen 0,15 und 0,2. Diese Konstruktion wird durch passive Maßnahmen für den sommerlichen und winterlichen Wärmeschutz ergänzt: Fenster mit einer Dreifachverglasung und U-Werten < 0,9, sowie ein außenliegender Sonnenschutz.

Bei der technischen Ausstattung kommt eine Wärmepumpenanlage zum Heizen und Kühlen zum Einsatz. Dabei dient eine Erdwärmesonde als Wärmeentzugsanlage. Durch die Verwendung von Edelstahlsonden mit hoher Entzugsleistung kann diese bereits ab einer geringen Bohrtiefe von 25m genug Erdwärme ableiten und das Gebäude versorgen. Die Räume werden dann über Rohrdeckenelemente die zwischen den Deckenbalken montiert werden sowohl geheizt als auch gekühlt. Der Saal, das Bürgerbüro und wo notwendig auch andere Nutzungsbereiche werden über eine Lüftungsanlage mit hocheffizienter Wärmerückgewinnung belüftet. Alle technischen Anlagen werden, sicher vor Hochwasser, in der letzten Dachebene untergebracht.

Hochwasserschutz

Durch die Verwendung von Dämmbeton im Sockelbereich wird den Belangen des konstruktiven Hochwasserschutzes sowie den Belangen einer nachhaltigen Bauweise Rechnung getragen. So kann im Falle von auftretendem Hochwasser davon ausgegangen werden, dass bei dieser monolithischen Bauweise keine größeren bleibenden Schäden entstehen. Weder innerhalb der Konstruktion noch im Inneren des Gebäudes. Lediglich die Zugänge müssen im Bedarfsfall mit mobilen Hochwasserschutzelementen vor eindringendem Wasser geschützt werden. Die Hofmauer dient in diesem Zusammenhang nicht nur als Abgrenzung zum Parkplatz, sondern auch als permanenter Hochwasserschutz zu den innenliegenden Fassadenfenstern.

ERLÄUTERUNG IDEENTEIL

Freiraum, Platzgestaltung, Verkehr

Das Freiraumkonzept strebt die Neuordnung des bestehenden Rathausplatzes mit gestalterischer Verbindung der beiden, durch die Hauptstraße getrennten Platzbereiche an. Dies geschieht unter Berücksichtigung des Vorhandenen, also der bestehenden Bäume und des bestehenden Bodenmaterials. Ziel ist die Steigerung der Aufenthaltsqualität, die Regulierung des Verkehrsflusses und ein sensibler Umgang mit Starkregenereignissen. Dies wird erreicht durch eine einheitliche Verkehrsführung im Einbahnverkehr, wobei die Straße vom Platzbereich durch eine abgesetzte Steinrinne markiert ist. Baumrigolen zur Entwässerung schaffen hier Synergien.

1. Verbindung der beiden Platzbereiche

Der östliche und westliche Teil des Rathausplatzes wird durch eine einheitliche Materialgebung der mittleren Zone optisch miteinander verbunden. Kleine Granitsteine in Segmentbogen verlegt heben den Mittelbereich von den umliegenden Fahrzonen ab. Der östliche Platzbereich wird zusätzlich durch einen Brunnen und ein Baumkarree aus neu gepflanzten Linden gegliedert. Der Brunnen mit Wassersprudel schafft ein angenehmes Mikroklima, die wassergebundene Rieseldecke mit Sitzbänken unter den Linden lädt zum Verweilen ein. Die Bestandslinde könnte erhalten und seitlich mit sickerfähigen Kurzzeitstellplätze ergänzt werden.

Der westliche Platzbereich wird durch das bereits bestehende Baumfeld mit sechs Kastanienbäumen geprägt. Hier wird durch drei Sitzinseln und eine Sitzstufenmulde ein neues Angebot geschaffen. Sie kann als Veranstaltungs- oder Tanzboden genutzt werden und ist gleichzeitig Retentionsmulde. Am Platzende werden vier Stellplätze untergebracht, ohne dass die Atmosphäre des Platzes negativ beeinflusst wird.

2. Neuorganisation Verkehr

Als wesentliches Manko wird in der aktuellen Situation die starke Trennung des Rathauses vom Rathausplatz empfunden. Somit dient der Vorschlag der Neuorganisation des Verkehrs überwiegend der Verkehrsreduzierung der Straße unmittelbar vor dem Rathaus. So kann der Rathausplatz im Bereich des neuen Rathauseingangs im Sinne eines „shared space“ überwiegend den Fußgängern und Rathausbesuchern gewidmet werden. Dies gelingt über einen konsequent geführten Einbahnverkehr. Die Zufahrt zu Wohngebiet und Supermarkt wird hierbei über die nördliche Platzkante geführt. Alle den Supermarktparkplatz verlassende Autos fahren über die südlich vom Rathaus gelegene Ausfahrt zur Hauptstraße wieder ab, ohne den Rathausplatz erneut kreuzen zu müssen. Lediglich der vom Wohngebiet kommende Verkehr muss über die direkt vor dem Rathaus gelegene Straße geleitet werden. Nach diesem Prinzip wird auch der Verkehr im westlichen Platzbereich organisiert.